Commercial |
Burlington

The Chace Mill Building

1 Mill Street, Burlington, VT
Space Available: 600 sq. ft. to 3,800 sq. ft.

The Chace Mill Building

adminclutchcreativeco

Property Description

Chace Mill is a fully activated, dynamic workplace. This retrofitted mill is home to a diverse array of tenants ranging from traditional office users, yoga studios, art galleries, therapist offices, a coffee shop, and everything in between.

Whether you are looking for a small, private 600 sq. ft. office or a larger 3,800 sq. ft. space for your growing company, Chace Mill has it all.

Formerly an industrial mill, the building has undergone a very significant retrofit while still retaining its historic charm.

Current Availabilities:

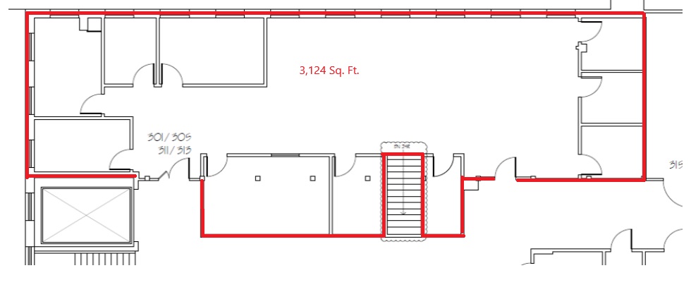
Ste 301: 3,124 Sq. Ft.
Ste 249: 3,849 Sq. Ft.
Ste 264: 664 Sq. Ft.
Ste 190 & 290: 3,478 Sq. Ft.

Interested?

Please reach out for more info.
  • This field is for validation purposes and should be left unchanged.

Stay in touch!
Subscribe to our Commercial Real Estate Newsletter

Skip to content